Models can be customized with your choice of finishes. Floor plans are a starting point — every project is adapted to your specific lot, setbacks, and municipality.
1 Bed / 1 Bath




Cozy 1-bedroom unit with full kitchen and bath in 420 sqft.


Cozy 1-bedroom unit with full kitchen and bath in 436 sqft.



1-bedroom unit with full kitchen and bath in 506 sqft.




Spacious 1-bedroom with modern amenities across 625 sqft.




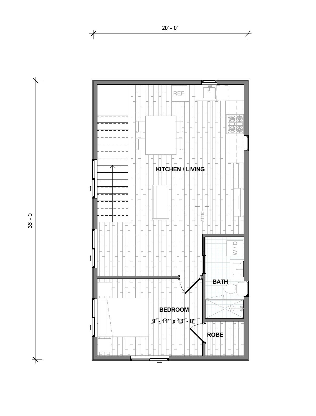
Comfortable 1-bedroom ADU across 705 sqft.



Spacious 1-bedroom ADU across 729 sqft.
2 Bed / 1 Bath




Efficient 2-bedroom ADU in just under 700 sqft.




Compact 2-bedroom ADU across 775 sqft.




Mid-size 2-bedroom ADU at 875 sqft.




Largest 2-bedroom ADU at 936 sqft.
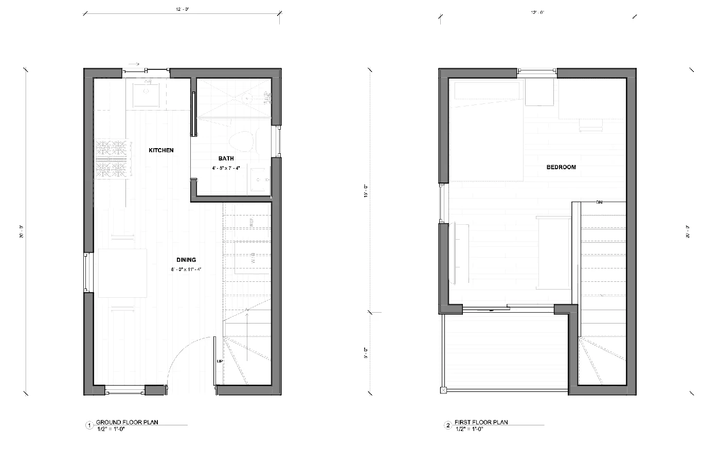
ADU above Garage



ADU above a new detached garage — 510 sqft of dedicated living space.



ADU above a new detached garage — 620 sqft with 1 bedroom and full bath.




Largest garage ADU — 720 sqft with 2 bedrooms above a new detached garage.

Start with a free feasibility check.
We confirm what’s buildable on your property before any design work begins.
Get a Free Feasibility Check →













